Prodej novostavby rodinného domu ve Svitavách
Svitavy - Hálkova

7 800 000 Kč

Popis

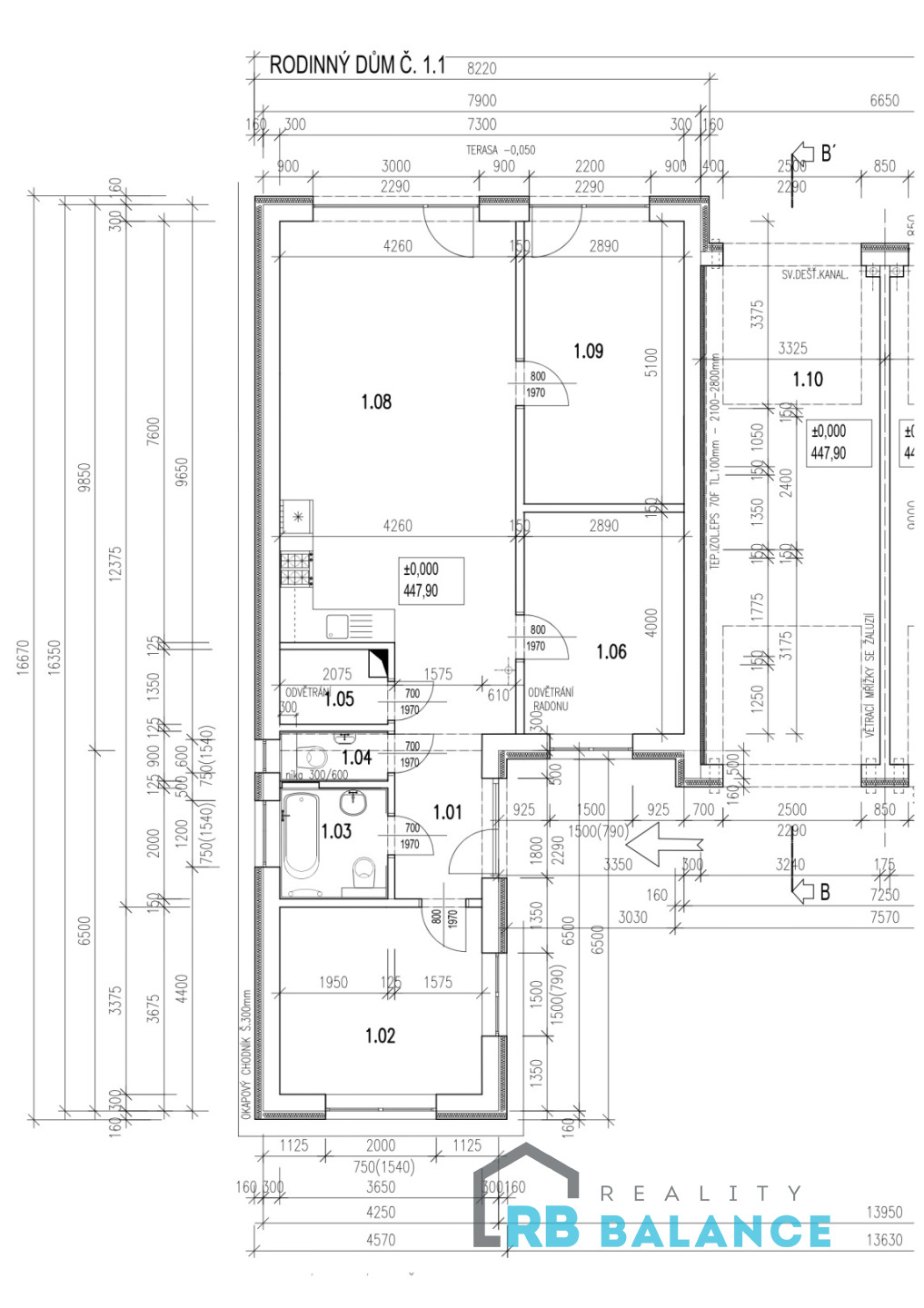
Moderní, komfortní a úsporné bydlení v jednom. Nabízíme k prodeji moderní přízemní novostavbu rodinného domu 4+kk v developerském projektu v klidné části ve Svitavách na ulici Hálkova. Dům má užitnou plochu 88,1 m², celkovou plochu 117,2 m² a stojí na pozemku o celkové výměře 401 m². Dispozice nabízí prostorný obytný prostor s kuchyňským koutem a výstupem na terasu, tři samostatné pokoje, koupelnu, samostatné WC a technickou místnost. Součástí objektu je garáž o výměře 29,1 m² a vyhrazené parkovací místo, pozemek je oplocený. Dům je realizován zděnou technologií jako novostavba s předpokládanou kolaudací v roce 2027 (stavba 2026) a je napojen na veškeré inženýrské sítě – vodovod, veřejnou kanalizaci i elektřinu (230/400 V). Vytápění je řešeno podlahovým systémem s dalším doplňkovým zdrojem tepla - tepelné čerpadlo (vzduch - voda), které zajišťuje komfortní a úsporné provozní náklady. Lokalita nabízí klidné prostředí s dobrou dostupností – vlak, autobus i silnice v dosahu, v blízkosti kompletní občanská vybavenost (škola, školka, zdravotnická zařízení, pošta, supermarket a služby). V průběhu výstavby lze upravit vnitřní dispozici domu dle přání klienta.
Cena je v dodávce na klíč a obsahuje kromě samotné stavby domu kompletní systém vytápění, rozvody elektro, interiérové dveře, výmalbu, koupelnu a WC ve standartním provedení, nádrž na dešťovou vodu s možností dopojení na splachování WC.
Cena neobsahuje dodávku podlahových krytin a dodávku kuchyňské linky. Na dům je možné dodatečně požádat o dotaci z programu NZÚ na pořízení fotovoltaické elektrárny. Celková plocha pozemku představuje vždy výměru stavební parcely, zahrady za domem a předzahrádky.
K dispozici jsou poslední dva domy ve třetí etapě výstavby. Nenechte si ujít tuto skvělou příležitost na Vaše vysněné bydlení.
Pro více informací kontaktujte makléře.
Číslo nabídky
N665
Adresa
Svitavy, Hálkova
Dispozice domu
4+kk
Poloha objektu
Řadový
Druh stavby
Cihlová
Zastavěná plocha
142 m2
Celková plocha
117.2 m2
Užitná plocha
88.1 m2
Stav objektu
Novostavba
Plocha pozemku/ů
401 m2
Typ domu
Přízemní
Počet podlaží
1
Rok výstavby
2026
Umístění objektu
Klidná část obce
Komunikace
Asfaltová
Obytná plocha celkem
117.2 m2
PENB: Náročnost budovy
B - Velmi úsporná
PENB: Ukazatel náročnosti budovy
72 kWh/m2
PENB: Norma
vyhláška 264/2020 Sb.
Kristýna Svěráková
Kristýna Svěráková
Domluvit prohlídku
zobrazit velkou mapu